Descrizione
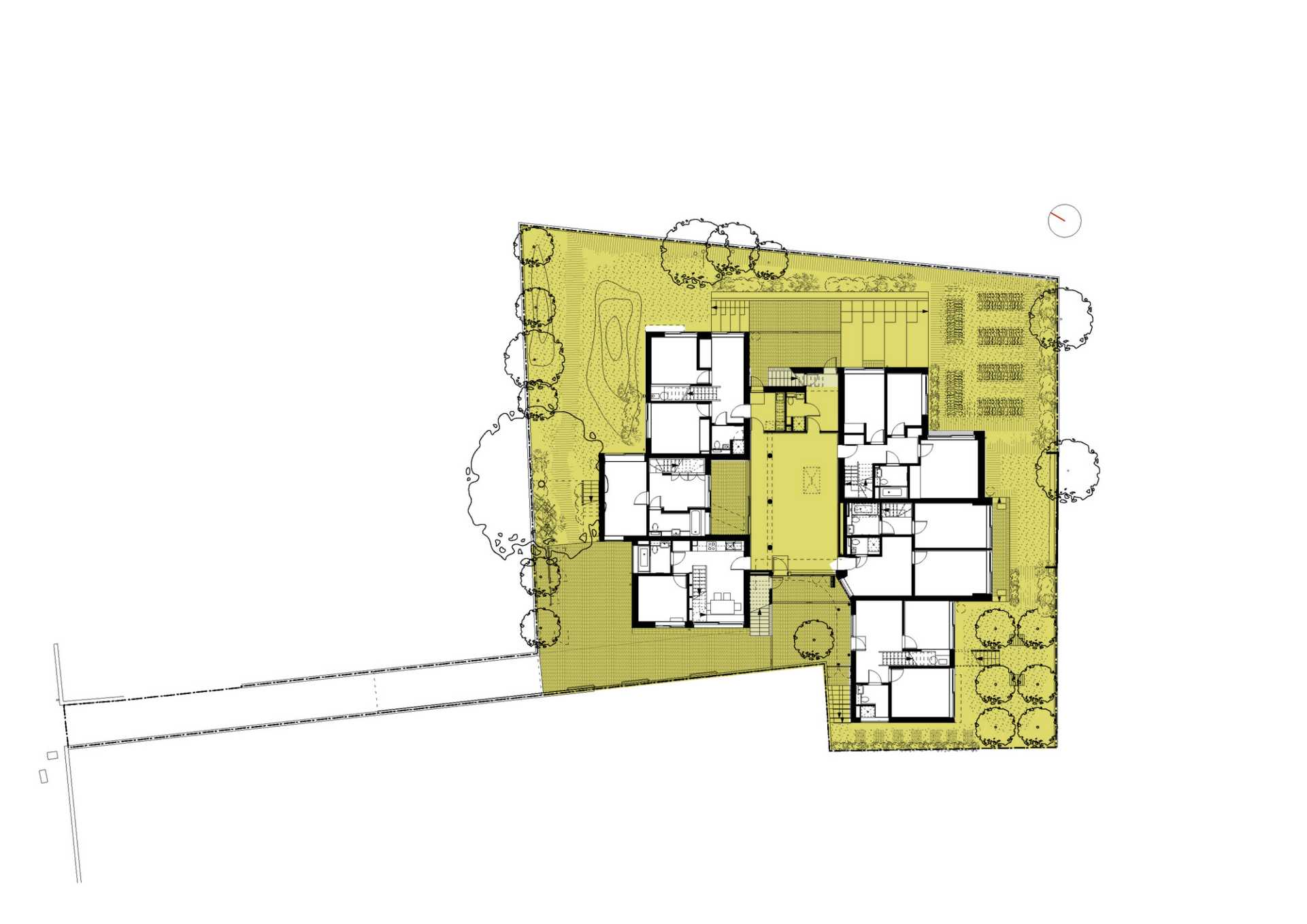
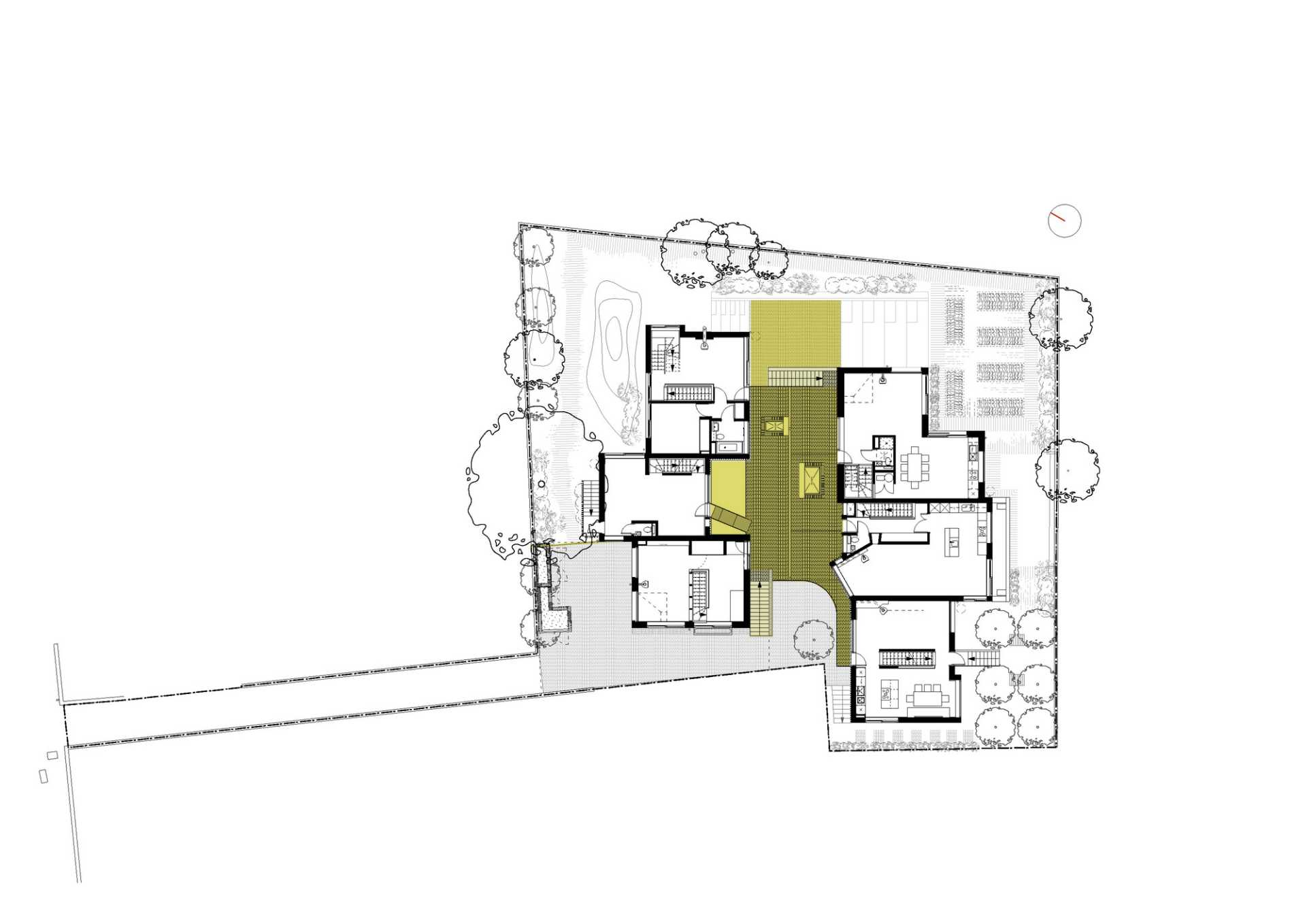
Il CHU insediato nell’autunno 2016 nel 16°arrondissement, lungo l’Allée des Fortifications sul margine urbano del Bois de Boulogne, è un caso emblematico che dimostra come la risposta alla richiesta di alloggi per persone senza fissa dimora o migranti possa rappresentare un’occasione per sperimentare pratiche innovative di gestione dello spazio urbano. Il centro, coordinato dall’associazione Aurore e realizzato su progetto dello studio Moonarchitectures, accoglie 200 persone, metà delle quali famiglie, all’interno di un edificio con previsione di vita triennale. Il progetto declina il tema dell’accoglienza con quello dell’urbanistica temporanea, pratica che prevede l’occupazione provvisoria di edifici o lotti dismessi, per l’arco temporale utile alla determinazione di destinazione d’uso definitiva o alla redazione e cantierizzazione di progetti previsti. La Promesse de l’Aube presenta la singolarità di essere stato realizzato su un terreno classificato come non edificabile dalle norme vigenti (area verde nel PLU-Plan Locale d’Urbanisme di Parigi); questo tramite l’applicazione di un articolo del codice nazionale dell’urbanistica che permette eccezionalmente la realizzazione di edifici “precari”, anche in contrasto alle norme locali che regolamentano il regime dei suoli, nel caso in cui tali opere siano necessarie per motivi di urgenza o per interessi collettivi.
La costruzione si suddivide in cinque blocchi, due destinati ai nuclei familiari, due alle persone sole e uno interamente dedicato alle funzioni di servizio quali portierato, accoglienza e uffici amministrativi. Ciascuno dei blocchi, di altezza variabile da uno a tre livelli, è distribuito da un sistema di connessione verticale aperto che, insieme alla sezione mutevole, assicura numerose visuali libere sul sistema verde del Bois de Boulogne. L’edificio è interamente realizzato tramite accostamento e giustapposizione di moduli prefabbricati in legno (8×3,3 metri), disposti planimetricamente secondo entrambi gli orientamenti possibili: nei due blocchi per gruppi i moduli sono accostati l’un l’altro lungo il lato minore, dispongono di servizi igienici interni e ospitano ciascuno un nucleo familiare. Nei blocchi dedicati all’accoglienza dei singoli i moduli sono invece accostati lungo lo sviluppo maggiore e si suddividono in due stanze private, separate dal corridoio centrale e con servizi igienici condivisi. In tutti i blocchi e su ciascun livello, sono presenti moduli liberi e spazi all’aperto, destinati all’uso comune e all’appropriazione da parte dei residenti. La costruzione, smontabile e riutilizzabile in altro sito, completamente prefabbricata e assemblata in breve tempo con un cantiere a secco, pur nel quadro del contenimento dei costi, della composizione elementare e dell’estrema semplicità costruttiva, assicura all’operazione un alto standard qualitativo ed estetico.
Approfondimenti
https://www.moonarchitectures.fr/centre-dhebergement-provisoire-de-200-places
Progettisti: Moonarchitecture
Luogo: Parigi (Francia)
Anno: 2016



































































































































































































































































